• Réf.
  • Prix min. €
  • Prix max. €
  • Type
  • Ville
  • Surf. min. M²
  • Surf. max. M²
  • Nb. Pièces min.
locaux d'activités -
Description :

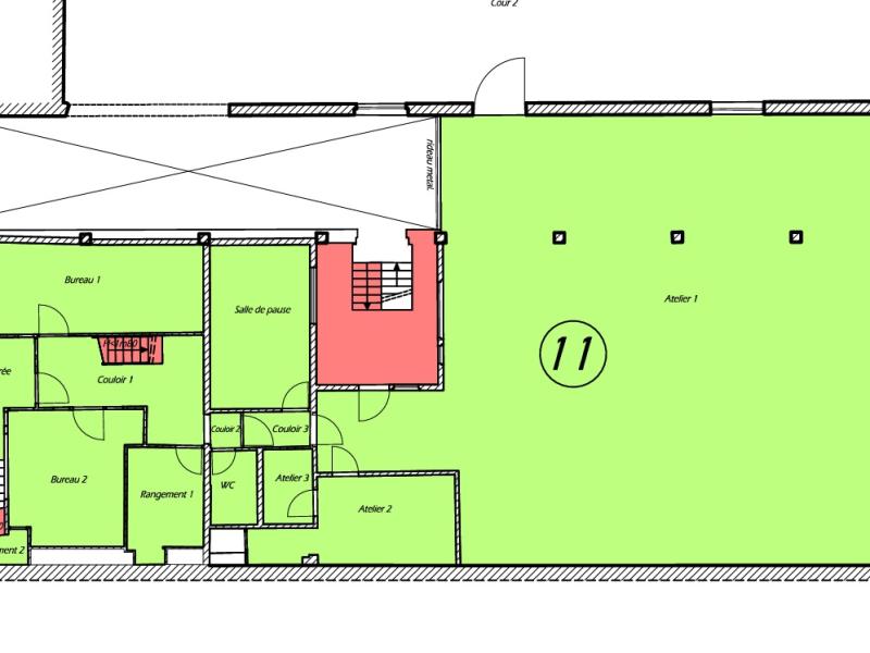
Tourcoing , au sein du quartier de l'union, locaux d'activités de 300 m² composés de deux bureaux, d'un atelier avec quai de chargement, à cela s'ajoutent deux grandes caves pour environ 250 m² et 7 parkings extérieurs

Caractéristiques :
Surface habitable : 302 m2
Chambre :
SDB :
Type de chauffage :
Energie :
Conso théorique mini : 0 €/AN
Conso théorique maxi : 0 €/AN
Année de référence :
Garage :
Référence : locauxd#039acti
Étiquettes DPE & GES
dpe
ges
Les informations sur les risques auxquels ce bien est exposé sont disponibles sur : www.georisques.gouv.fr

Entrepôt à vendre à tourcoing

Réf : locauxd#039acti 475000 € *

  Partager
  Imprimer
  Retour

Concept Immo Lille

Mr Lucien ISART
isart@conceptimmolille.com
03 20 38 10 00

Pour vous opposer à tout démarchage téléphonique, inscrivez-vous sur : www.bloctel.gouv.fr

Contact CGU & RGPD 0001.fr © 2017-2022