• Réf.
  • Prix min. €
  • Prix max. €
  • Type
  • Ville
  • Surf. min. M²
  • Surf. max. M²
  • Nb. Pièces min.
Appartement VALENCIENNES -
Description :

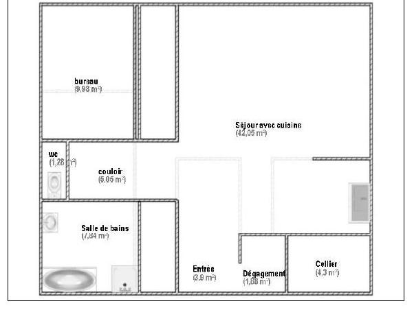
À louer : RESIDENCE NOUVEL ART ? Appartement atypique 93.26 m² ? Bâtiment C ? Valenciennes

Au rez-de-chaussée, spacieux appartement comprenant : un grand séjour avec cuisine équipée, une chambre avec mezzanine, deux espaces bureaux en mezzanine, deux salles de bain, WC séparés, buanderie. Chauffage électrique. double vitrages PVC.

Loyer mensuel : 900 euros
Charges mensuelles : 65 euros

Disponible immédiatement.

Caractéristiques :
Surface habitable : 93 m2
Chambre : 1
SDB : 1
Type de chauffage : Individuel
Energie :
Conso théorique mini : 920 €/AN
Conso théorique maxi : 1300 €/AN
Année de référence : 2025
Garage :
Loyer mensuel HC : €
Complément mensuel de loyer : 0 €
Provision pour charges mensuelles : 65 €
Loyer mensuel charges comprises : 65 €
Etat des lieux : 115 €
Honoraires charge locataire : €
Dépôt de garantie : 900.00 €
Référence : 18236
Étiquettes DPE & GES
dpe
ges
Les informations sur les risques auxquels ce bien est exposé sont disponibles sur : www.georisques.gouv.fr

Appartement à louer à valenciennes

Réf : 18236 965 € *

  Partager
  Imprimer
  Retour

Agence Soyez

Mr Adrien ADAM
a.adam@agencesoyez.fr
03 27 46 19 11

Pour vous opposer à tout démarchage téléphonique, inscrivez-vous sur : www.bloctel.gouv.fr

Contact CGU & RGPD 0001.fr © 2017-2022